Descripción
- Tipo: agua limpia
- Aplicaciones: doméstico
- Usos: sistemas de presión, irrigación
- Tipología: superficie
- Familia: autocebante
- Campo de prestaciones: Caudal hasta 34 l/min (2,0 m³/h) – Altura manométrica hasta 56 m
- Mejor punto hidráulico 53 MCA / 3 GPM
Empleo
- Temperatura del líquido hasta +40 °C
- Temperatura ambiente hasta +40 °C
Resumen
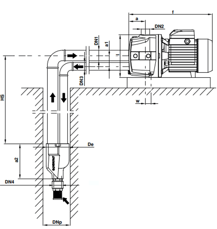
Se aconsejan para bombear agua limpia y líquidos químicamente no agresivos para los materiales constituyentes la bomba. Las bombas de la serie JDW, instaladas en superficie con el eyector
sumergido, aseguran el funcionamiento incluso cuando el nivel estático del agua del pozo desciende hasta 45 metros bajo el nivel de instalación de la bomba. Por esta característica, junto a su extrema fiabilidad, sencillez de uso y economía, son particularmente aptas para el uso doméstico y, en particular, para la distribución automática del agua acopladas a pequeños o medianos sistemas hidroneumáticos, o para el riego de huertas, jardines y en todos los casos en los que la profundidad a la que se debe aspirar supere la capacidad de aspiración de las normales
bombas de superficie (9 metros).
En la boca del eyector debe estar instalada siempre una válvula de
retención; en la boca de impulsión de la bomba se aconseja instalar
una válvula que asegure una presión adecuada durante su
funcionamiento.
Para tener en cuenta
- Todos los equipos de cuentan con la garantía de fábrica.
- El envío es gratuito en la ciudad de Bogotá.
- El costo de envío para fuera de la ciudad y del país debe ser asumido por el comprador.
Datos técnicos
| MODELO | FASES | POTENCIA
(hp) |
TENSIÓN (voltaje)
|
CONSUMO (amperios) | BOCAS
(S) |
BOCAS
(D) |
| JDWm 2/30-4″ | 1 | 1.5 | 110/220 | 17.8/8.9 | 1” 1 1/4″
|
1” |






Valoraciones
No hay valoraciones aún.